RESIDENTIAL

HOUSE DEYSEL

Boardwalk Meander, Pretoria

This project, one of the first awarded to Anthrop back in January 2011 literally took 6 years to complete due to a number of reasons. Both the client and architect stayed focused on the end goal through to the end which was well worth the while.

 

The client brief called for a typical family home of four within the Boardwalk Meander Estate featuring contemporary modern features and planning. The estate being quite established and the architectural guidelines slightly dated with very strict “cape Dutch” influences, the first challenge in terms of architectural language very quickly came to the forefront of the design development process.

 

Another concern was capturing the magnificent dam view to the South but yet somehow gaining much needed northern sunlight.The stand shape also didn’t lend itself in favor of the envisaged planning forcing the required 3 garages onto the cul-de-sac north east of the stand. The floor plan therefore features an open plan living, dining & kitchen area with 2 bedrooms off a central axis or rather “hallway” running east and west and a shared bathroom at the most western end of the house. Large windows in the hallway frames vistas over the magnificent dam views and established estate landscaping.

 

The open plan dining and kitchen areas spills out onto a large outdoor dining and bar area overlooking the dam.

 

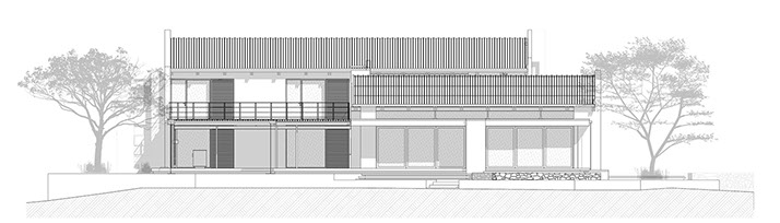
With aesthetics and orientation being problematic the resulting tectonic came from a number of HOA meetings and counter arguments to eventually obtain approval on what is arguably a house totally out of context when compared to its neighbors and surrounding dwellings and rather a contemporary interpretation of Cape Dutch tectonics. The roofs are raised and detailed to float of the wall plate in order to create a feeling of lightness as well as to allow much needed northern light into the interior. The idea continues into a large double volume kitchen area featuring large window areas next to the first floor catwalk in order to bring light into the open plan interior.

 

In tern the floating roofs create a sense of transparency through the open living areas, specifically on first floor when the view of the dam is obscured through these layers of floating glass and roof volumes.

Copyright © 2021 Anthrop Architects. All rights reserved.