RESIDENTIAL

HOUSE TWALA

Serengeti Golf & Wildlife Estate, Kempton Park

“Make the most of the views and location of the site” – This was the foremost concern the client expressed at the outset of the project - to utilize views across the local wetland and the surrounding golf greens. Keeping this in mind we set out to design a contemporary home, true to its site and topography whilst moulding it to the client’s needs and aspirations.

 

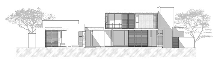
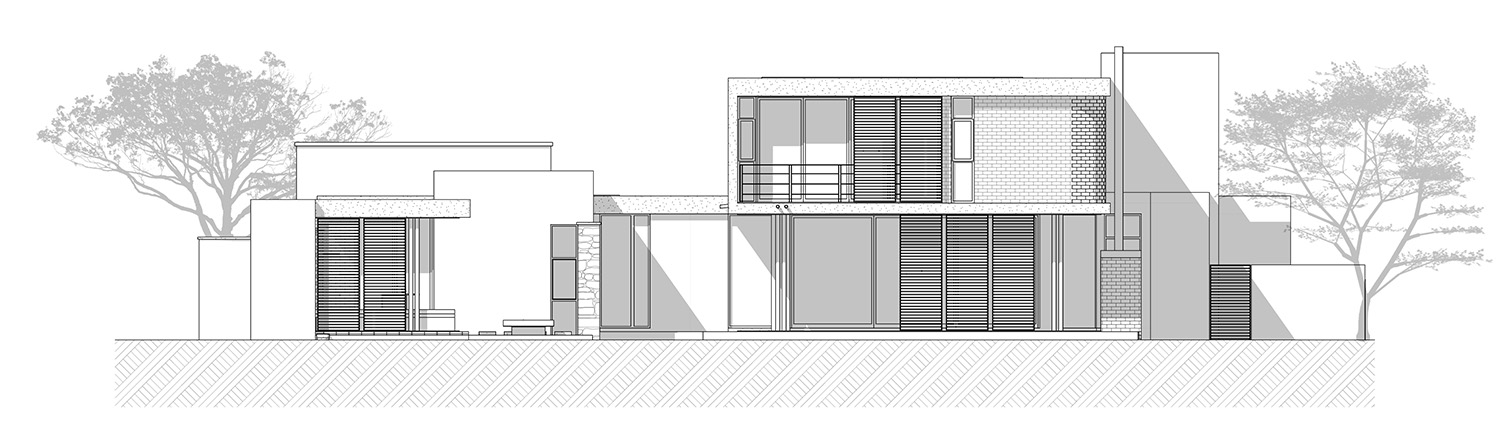
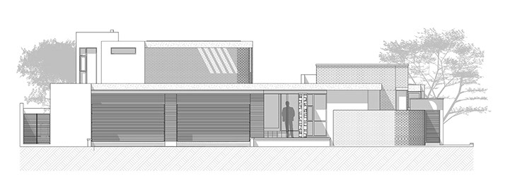
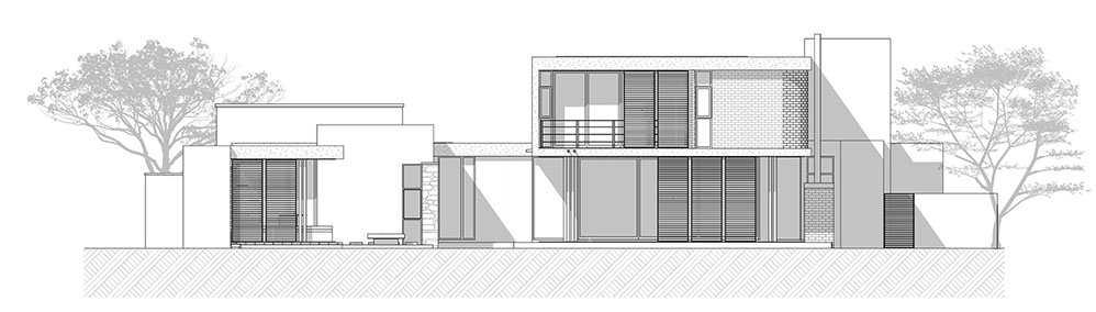
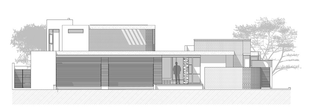
With the main view orientated South-West, the siting of the house proved challenging. All the main living areas as well as the bedrooms are orientated North-West to make the most of what the Highveld climate has to offer, whilst still retaining the view across the golf course. To protect the interior spaces from excessive heat-gain in the afternoons, large overhangs together with sliding steel and timber screens are employed. High performance glazing further enhance the interior climate of the house. The design also maximizes on outdoor living with an ample sized covered patio overlooking the adjacent wetland, connected to an al-fresco bar and pool house.

 

Spatially, the architecture employs strong horizontal lines with strategically placed vertical elements to form a balanced composition. Connecting the interior and exterior was of cardinal importance and the design incorporates various skylights together with floor-to-ceiling glazing and sliding glass doors to facilitate a seamless flow of activities. Aesthetically we disposed of superficial ornamentation and instead engaged light and shadow together with the authentic use of raw, earthy materials to govern the spatial qualities of the home. The consistent use of timber, glass, steel, fair-face brickwork and off-shutter concrete, both inside and out, ensures that the textures and finishes form a unified whole - an understated, yet timeless back-drop to a relaxed, modern Highveld lifestyle.

Copyright © 2021 Anthrop Architects. All rights reserved.