MORVEST HEADQUARTERS

NOORDWYK, Midrand

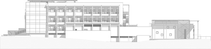
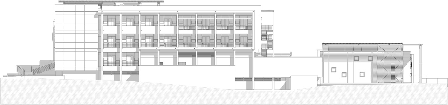
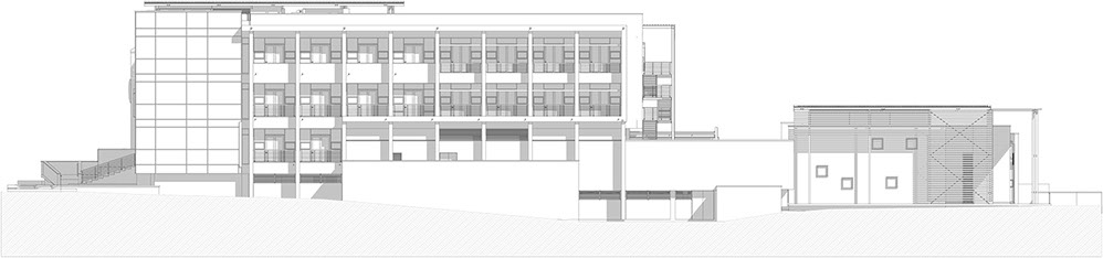
A campus to serve as the headquarters for the Morvest Business Group is situated adjacent to the Ben Schoeman highway. The client is a rapidly growing holding company requiring a flexible programme to house the various constituent companies and their associated functions. The campus comprises three buildings (two three-storey office buildings and a single-storey training and events centre) oriented around a courtyard to accommodate a diverse programme (corporate, training and hospitality). Flexibility in the programme is facilitated with lightweight interior construction systems for the offices and demountable demising walls in the training and entertainment facility.

 

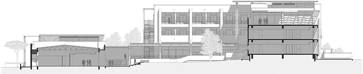
Movement between the buildings and functions is a key design consideration which is made possible by large covered exterior circulation areas to connect the components. These exterior walkways further acts as a datum to unite the three structures into a cohesive whole. The buildings are sited to gain maximum brand exposure from its prominent position, to maximise northern orientation and to facilitate the need for future expansion. These factors informed the placement of the buildings in a cluster on the north-eastern corner with the possibility of expanding the campus towards the south-west. Appropriate climatic response is a major design informant. For example, Building B (offices) is oriented with a north-south axis, requiring climatic response on its east and west facades. The east facade is protected with aluminium louvers, while fenestration on the west is limited and shaded with pre-cast concrete surrounds. In other areas bio-climatic strategies such as shaded fenestration and solar shelves on the north facade, masonry fins to protect the interiors from south-west afternoon sun, optimising natural day lighting, motion controlled LED artificial lighting are used. Green technologies such as photovoltaic cells, water harvesting and a building management system could not be implemented due to budget constraints but are future-enabled.

 

To shorten the construction time the buildings have a reinforced concrete column-and-beam structure with pre-cast concrete slabs, masonry infill and curtain walls. To generate the illusion that the building is floating above the ground light grey plastered walls are contrasted with a dark recessed plinth. The material use is cool and collected and the scale of construction generous in public places to establish an impressive corporate presence (e.g. aluminium, glass, plaster and paint in the multi-volume entrance foyer). This is contrasted on the finer-grained human scale when a comfortable and inviting presence is required (e.g. the warm palette of joinery and cabinets and the inclusion of a prayer room).

 

As a young firm, Anthrop responded to the client’s requirements with a human centred approach applied through the combination of traditional architectural design and new-design skills aimed at the response to the complexity of current practice. Author: Raymund Königk

Copyright © 2021 Anthrop Architects. All rights reserved.